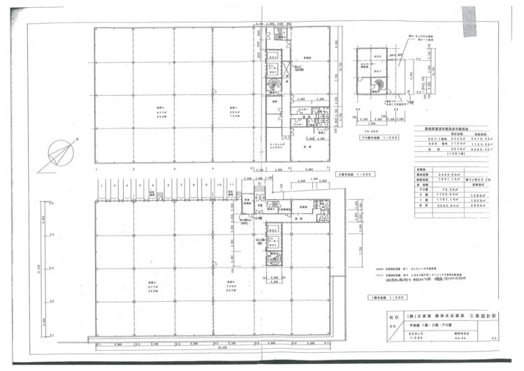
不動産 事業用賃貸
焼津市越後島貸倉庫
| 物件種目 | 事業用賃貸 | 
|---|---|
| 名称 | 越後島貸倉庫 | 
| 最適用途 | 食品自家用倉庫 | 
| 間取 | |
| 賃料 | 月額3,000,000円 | 
| 保証金 | なし | 
| 敷金・礼金 | 敷金6ヶ月、礼金なし | 
| 住所 | 焼津市越後島567-1、566-1 | 
| 交通 | 東海道本線 西焼津駅 距離2.8km | 
| 築年月 | 平成12年1月 | 
| 備考 | 市街化調整区域 自家用倉庫 建築基準法22条区域 | 
| 土地面積 | 3470.77㎡(1049.90坪) | 
|---|---|
| 建物面積 | |
| 建物構造・規模 | 鉄骨造亜鉛メッキ鋼板葺 | 
| 使用部分面積 | 1階1,761.56㎡(532.87坪)2階1,755.54㎡(531.05坪) | 
| 設備 | |
| 契約期間 | 3年~5年 | 
| 現状 | 居住中 | 
|---|
| 引渡日 | 応相談(令和8年3月以降) | 
|---|
| 駐車場 | 有 20台分 | 
|---|
| 共益費 | 
|---|

 
         
         
         
           
           
          
